Your Ascot Woods Retreat

3672 Hetten LAnE, Woodbridge, VA 22193



3D Virtual Tour

Matterport 3D Showcase


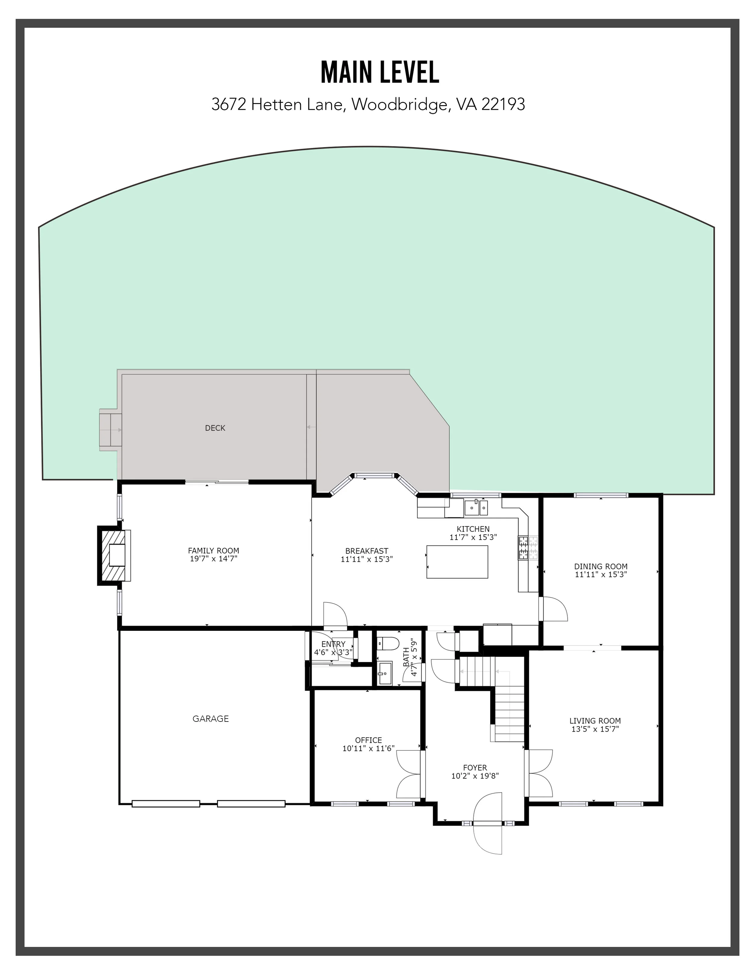
Floorplan

floorplan 2.jpg